Le projet est intéressant en raison de la rareté de la combinaison entre l'indépendance de chaque unité et l'efficacité énergétique la plus élevée.
L'intervention est née d'une rénovation intégrale qui suit des normes de qualité d'excellence, offrant le charme de la récupération architecturale associé aux technologies de construction les plus modernes.
• Type : Terratetti indépendants ciel-terre.
• Atouts Extérieurs : Jardins exclusifs et terrasses habitables pour chaque unité.
• Parking : Garage privé et/ou place de parking de propriété.
• Durabilité : Classe énergétique prévue A (confort thermique et acoustique maximal).
• Personnalisation : Vaste descriptif des finitions intérieures au choix.
________________________________________
Focus Unité 2 : La Synthèse Parfaite entre rapport qualité-prix et panorama
L'Unité 2 se distingue par son excellent rapport qualité et par la vue panoramique qui la caractérise, idéale pour une famille qui recherche intimité et grands espaces et un jardin qui enrichit la vie de moments précieux.
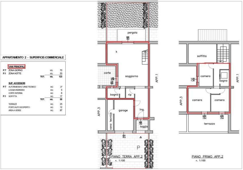
Pied Étage (Living & Garden) – MQ 70
L'entrée s'ouvre sur un vaste espace de vie conçu comme un open space lumineux.
• Zone de Jour : Double séjour avec accès direct à la pergola extérieure et au grand jardin privé de 87 m², parfait pour les déjeuners en plein air et la détente.
• Cuisine et Services : Zone cuisine fonctionnelle, salle de bain de service avec fenêtre et débarras confortable.
• Accessoires : Accès interne direct au Garage de 27 m² (un luxe urbain rare) et local technique.
• Cour Intérieure : Une petite cour qui garantit la lumière zénithale et la ventilation naturelle, créant une sorte d'effet cheminée.
Pied Étage Supérieur (Zone Nuit & Terrasse) – MQ 53
L'escalier intérieur mène à l'étage supérieur, dédié à la plus grande intimité :
• 3 Chambres : Bien éclairées, dont deux avec vue sur la terrasse habitable.
• Terrasse Habitable (MQ 23) : Un véritable solarium privé desservant la zone nuit.
• Salle de Bain Principale : Finitions au choix parmi de nombreuses possibilités, elle est éclairée par un lanterneau qui garantit le maximum d'aménagement de tous les murs et une intimité maximale.
• Grenier (MQ 17) : Espace accessoire idéal comme dépôt ou archive, dressing pour la chambre.
________________________________________
Pourquoi Acheter cette Propriété ?
1. Indépendance : Aucune charge de copropriété complexe et liberté de gestion maximale.
2. Valeur dans le Temps : La classe énergétique A garantit la pérennité de la valeur immobilière face aux futures réglementations européennes (Maisons Vertes).
3. Coupe Architecturale : Distribution judicieuse qui met en communication directe le garage et l'habitation, double exposition et cour intérieure pour une bonne ventilation et un renouvellement de l'air.
4. Fiscal : Possibilité de bénéficier des déductions fiscales prévues pour les rénovations de construction
________________________________________
Fiche Technique Synthétique
• Surface Commerciale Totale : env. 140 m²
• Pièces Principales : 123 m²
• Espaces Extérieurs : Jardin (87 m²) + Terrasse (23 m²)
• Annexes : Garage (27 m²) + Place de parking découverte (12 m²)
• État : Début des travaux (livraison prévue dans 18 mois)
Vous souhaitez consulter le projet complet ou choisir vos finitions ? Nous serions heureux de vous guider lors de la visite du chantier et d'imaginer ensemble la personnalisation de votre future maison, vous pourrez choisir les matériaux qui reflètent le mieux votre style. Contactez-moi dès aujourd'hui pour commencer ce nouveau projet de vie ensemble.
Classe Énergétique : A EPI : 1 kwh/m2 an
Ce texte a été traduit automatiquement.
Descriptions saisies par l’annonceur
Langue à partir de laquelle la traduction automatique a été générée
Il progetto è interessante per la rarità del connubio tra indipendenza di ogni unità e l' altissima efficienza energetica.
L'intervento nasce da una ristrutturazione integrale che segue standard qualitativi d'eccellenza, offrendo il fascino del recupero architettonico unito alle più moderne tecnologie costruttive.
• Tipologia: Terratetti cielo-terra indipendenti.
• Plus Esterni: Giardini esclusivi e terrazzi abitabili per ogni unità.
• Parcheggio: Garage privato e/o posto auto di proprietà.
• Sostenibilità: Classe energetica prevista A (massimo comfort termico e acustico).
• Personalizzazione: Ampio capitolato per la scelta delle finiture interne.
________________________________________
Focus Unità 2: La Sintesi Perfetta tra rapporto qualità-prezzo e panorama
L'Unità 2 si distingue perché ha un ottimo rapporto qualità e per la vista panoramica che la contraddistingue , ideale per una famiglia che cerca privacy e ampi spazi e un giardino che arricchisca la vita di momenti preziosi.
Piano Terra (Living & Garden) – MQ 70
L'ingresso si apre su un'ampia zona living pensata come un open space luminoso.
• Zona Giorno: Soggiorno doppio con accesso diretto alla pergola esterna e al grande giardino privato di 87 mq, perfetto per pranzi all'aperto e relax.
• Cucina e Servizi: Area cucina funzionale, bagno di servizio finestrato e comodo ripostiglio.
• Accessori: Accesso interno diretto al Garage di 27 mq (un lusso urbano raro) e vano tecnico.
• Corte Interna: Una chiostrina che garantisce luce zenitale e ricambio d'aria naturale, creando una sorta fi effetto camino.
Piano Primo (Zona Notte & Terrazza) – MQ 53
La scala interna conduce al piano superiore, dedicato alla massima riservatezza:
• 3 Camere da Letto: Ben illuminate, di cui due con affaccio sulla terrazza abitabile.
• Terrazzo Abitabile (MQ 23): Un vero solarium privato che serve la zona notte.
• Bagno Principale: Finiture a scelta tra le molte possibilità, è illuminato da un lucernario che garantisce la massima arredabilità di tutte le pareti e privacy massima.
• Soffitta (MQ 17): Spazio accessorio ideale come deposito o archivio, cabina armadio per la camera.
________________________________________
Perché Acquistare questa Proprietà?
1. Indipendenza: Nessuna spesa condominiale complessa e massima libertà di gestione.
2. Valore nel Tempo: La classe energetica A garantisce la tenuta del valore immobiliare contro le future normative europee (Case Green).
3. Taglio Architettonico: Distribuzione sapiente che mette in comunicazione diretta garage e abitazione, doppio affaccio e corte interna per una buona ventilazione e ricambio di aria.
4. Fiscale: Possibilità di usufruire delle detrazioni fiscali previste per le ristrutturazioni edilizie
________________________________________
Scheda Tecnica Sintetica
• Superficie Commerciale Totale: ca. 140 mq
• Vani Principali: 123 mq
• Spazi Esterni: Giardino (87 mq) + Terrazzo (23 mq)
• Pertinenze: Garage (27 mq) + Posto auto scoperto (12 mq)
• Stato: Inizio lavori (consegna prevista in 18 mesi)
Vuoi visionare il progetto completo o scegliere le tue finiture? saremmo lieti di guidarti nella visita del cantiere e immaginare insieme la personalizzazione della tua futura casa, potrai scegliere i materiali che meglio riflettono il tuo stile. Contattami oggi per iniziare questo nuovo progetto di vita insieme.
Classe Energetica: A EPI: 1 kwh/m2 anno
Détails
Type de bien
Ciel/Terre
État
Neuf
Surface habitable
123 m²
Chambres
3
Salles de bain
2
Jardin
87 m²
Classe énergie
A
Référence
borgo urbano
Classe énergie (Loi 90/2013)
Logement économe
A4
A3
A2
A1
B
C
D
E
F
G
Logement énergivore
Qu’est-ce que la classe énergie ?
La classe énergie est une valeur (exprimée par des lettres allant de A4 à G) qui indique la qualité énergétique et la consommation du bâtiment en fonction de paramètres tels que la forme et la zone climatique dans laquelle il se trouve. Par conséquent, plus la classe énergie est bonne, plus la consommation d’énergie ainsi que le coût de la climatisation du bâtiment seront plus bas. Nota bene : des immeubles appartenant à la même classe peuvent avoir des consommations très différentes si la forme et la zone climatique sont différentes.
Qu’est-ce que la consommation énergétique (EPI) ?
L’EPI indique la quantité d’énergie consommée pour que le bâtiment, ou l’unité immobilière, atteigne les conditions de confort, en fonction des services énergétiques présents et en fonction du type de bien, compte tenu d’une utilisation standard. L’unité de mesure est le kWh/m2 par an.
Nous vous recommandons de vérifier auprès de l’annonceur si la classe énergie du bien est mise à jour conformément à la Loi 90/2013.
Distance de:
Les distances sont calculées en ligne droite
Aéroports
27.0 km - Firenze FLR - Amerigo Vespucci
64.0 km - Pisa PSA - Galileo Galilei
108.0 km - Bologna BLQ - Guglielmo Marconi
116.0 km - Isola D´Elba EBA - Marina Di Campo
Transport en commun
8.0 km - Gare - Barberino Val d'Elsa
> 20 km - Arrêt de bus
Sortie d’autoroute
3.1 km
Hôpital
< 100 m - Ospedale Naldini Torrigiani
Côte
61.6 km
Station de ski
10.4 km
Autour de ce bien
Magasins
540 m - Boulangerie - Forno Panti
540 m - Traiteur - Stefanelle e Franco
590 m - Supermarché - Coop Tavarnelle
950 m - Pâtisserie - Bagnoli Pasticceria
Manger à l’extérieur
430 m - Restaurant - Ristorante Cortefreda
520 m - Glacier - Ocquolina
530 m - Bar - Fiorentina
6.9 km - Café - Circolo il Versò
Activités sportives
10.3 km - Centre sportif - Virtus
11.4 km - Centre équestre
14.9 km - Club de golf - Golf L'Abbadia
15.5 km - Salle de gym - Palestra Tecce
Écoles
160 m - École
12.6 km - Université - Azienda Agricola Montepaldi
17.7 km - Établissement d’enseignement supérieur - Istituto Statale di Istruzione Superiore Federigo Enriques
Aidez-nous à améliorer votre expérience Gate-away en donnant un commentaire sur cette annonce. Veuillez ne pas considérer le bien lui-même, mais uniquement la qualité de sa présentation.
De bonnes choses viennent à ceux qui s’inscrivent à nos e-mails !
Vous recevrez :
Les meilleures affaires immobilières en Italie
Des mises à jour sur les services que nous proposons
Des informations sur l’Italie et son marché immobilier
Nous assurons votre confidentialité. Vos données personnelles ne seront jamais partagées avec des tiers.